Saltar al contenido
Expo Remodelación
expo REMODELACIÓN 2026
Reserva tu Stand

Expo Remodelación 2026

Del 22 al 26 de abril en el CCCT

La 1ra Exposición del Sector Remodelación en Venezuela, del 22 al 26 de abril en el CCCT

Horarios

Miércoles y Jueves 11:00 am a 7:00 pm
Viernes y Sábado 11:00 am a 8:00 pm
Domingo 11:00 am a 7:00 pm

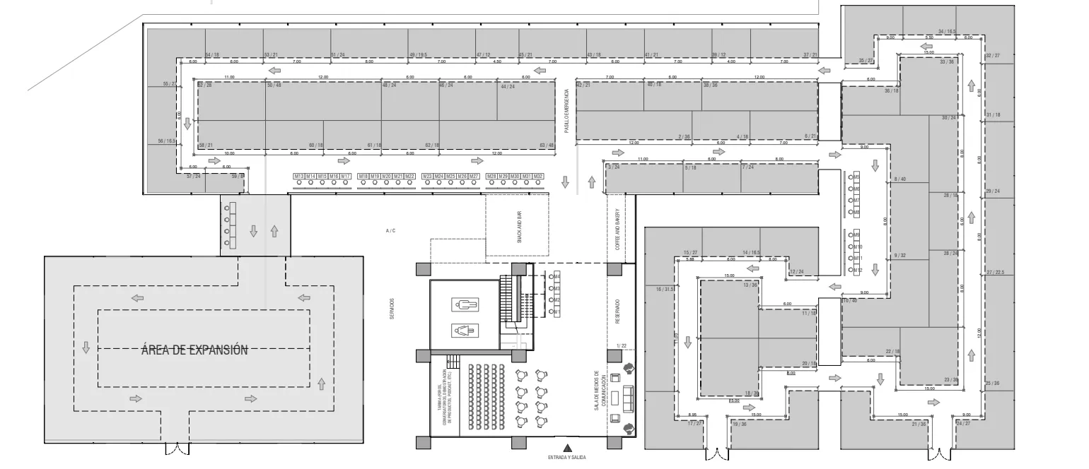
Plano del evento

Plano del recinto Expo Remodelación 2026 — distribución de stands numerados en el CCCT

Invitados especiales

Diego de León, invitado especial de Expo Remodelación 2026

Diego de León

@juve3dstudio

Camilo Calle, invitado especial de Expo Remodelación 2026

Camilo Calle

@hagalo_en_casa

Nicolás Gaitán, invitado especial de Expo Remodelación 2026

Nicolás Gaitán

@reformandocasas

Eventos Nocturnos

Karaoke Contest — Canta la Expo con Grupo 4Acordes

Viernes 24

Karaoke
Contest
"Canta la Expo"
con Grupo
4Acordes

9:00 PM
a 12:00 AM

Tributo a Luis Miguel con Beto Baralt

Sábado 25

Tributo a
Luis Miguel
con Beto Baralt

9:00 PM
a 12:00 AM

Próximamente

Expositores & Charlas

que no te puedes perder

🏗️

Anunciaremos el cronograma completo muy pronto

Síguenos en Instagram  @EXPOREMODELACION  para enterarte primero

Reserva tu Stand

Escaneando estos QR

QR de contacto de Carlos González, Director de Expo Remodelación

Carlos González

Director

QR de contacto de Romeo Morabito, Director de Expo Remodelación

Romeo Morabito

Director